Шлях до нерухомості мрії!

4 765 260 грн / $ 129 000 *

* Згідно з вимогами Закону України «Про рекламу» ціни на всі об'єкти нерухомості на сайті виводяться в гривнях.

Код об'єкта: 111328
Район: Куренівка (Оболонський р-н)
Адреса: Пріорська вул., 16
Кількість кімнат: 2
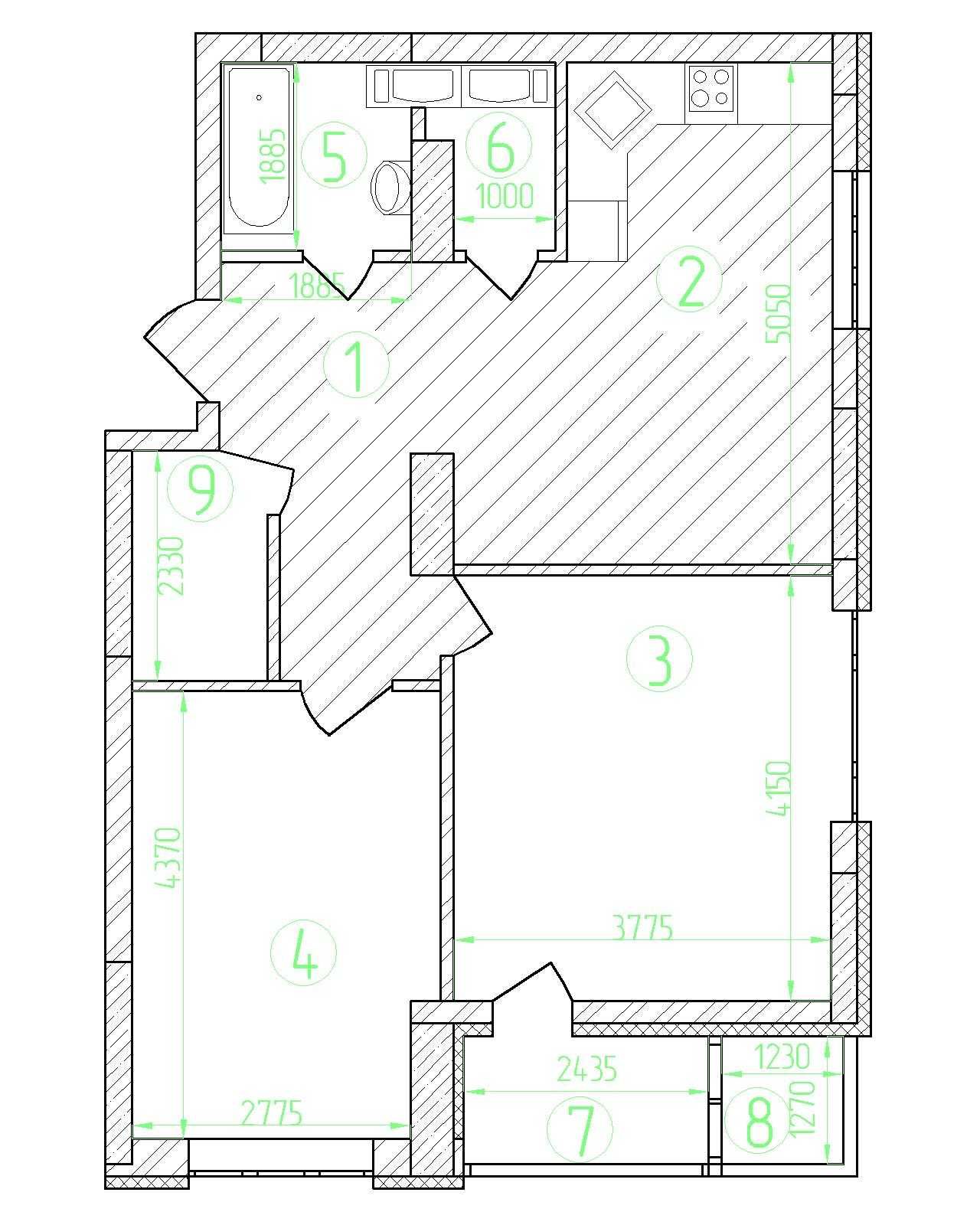
Площа, кв.м.: 65/15
Поверх/Поверхів: 4/23

Продаж / Квартира / вул. Пріорська,16, Куренівка, Київ

Простір, де комфорт поєднується з автономністю — квартира, в яку хочеться повернутися

Пропонується до продажу 3-кімнатна квартира з авторським переплануванням у Подільському районі, вул. Пріорська, 16 (Куренівка). Загальна площа близько 65 м², квартира має продумане планування: простора кухня-вітальня 15 м² та дві окремі спальні 18 і 16 м², гардеробна та два санвузли. Будинок цегляний, орієнтовно 2000-х років побудови. Квартира з якісним ремонтом, повністю готова до проживання

Головна перевага — автономність: встановлена станція безперебійного живлення (3 кВт), завдяки чому світло та вода є постійно. Закрита територія комплексу з цілодобовою охороною, завжди доступне паркомісце. Тихий та безпечний двір створює комфортне середовище для життя

Локація з відмінною транспортною доступністю: зупинка трамваю до Подолу — 1 хвилина пішки (≈100 м), зручний виїзд у всі напрямки міста. У пішій доступності магазини, супермаркети, школи та інші об’єкти інфраструктури. Вигідний варіант як для життя, так і для інвестиції

Можливий обмін на вашу нерухомість — вигідна пропозиція, яка дозволяє наблизити мрію ще швидше! Усі подробиці Ви можете дізнатися прямо зараз. Телефонуйте у будь-який час або пишіть у месенджери!

Надаємо повний спектр послуг з купівлі та продажу квартир та будинків.
Великий досвід у супроводі придбання квартир за державними програмами.
1 ) Є-оселя
2 ) Житло для ВПО та військових (Постанова КМУ №280, №719)
3 ) Сертифікати на зруйноване житло (Постанова КМУ №600)
4 ) Програма «Держмолодь»

З нами безпечно, якісно, вигідно!

Обирайте комфорт та впевненість у кожному кроці угоди.

Цей об'єкт на мапі:

Ваш рієлтор

Золоті Ворота

Записатися на перегляд




Залишаючи заявку я погоджуюсь на обробку моїх персональних даних




Продаж / Квартира / вул. Урлівська,38, Позняки, Київ

Код об'єкта: 3108015
Район: Позняки
Адреса: Урлівська вул., 38
Кількість кімнат:  3
Площа, кв.м.:  98//12
Поверх: 23/25

Продаж / Квартира / бул. Чоколівський, 10,Чоколовка, Київ

Код об'єкта: 3108005
Район: Чоколівка
Адреса: Чоколівський бульв., 10
Кількість кімнат:  2
Площа, кв.м.:  65//21.5
Поверх: 6/10

Продаж / Квартира / вул. Градинська, 3,Троещина, Киев

Код об'єкта: 3107952
Район: Троєщина
Адреса: Градинська вул., 3
Кількість кімнат:  3
Площа, кв.м.:  102//18
Поверх: 4/25

Продаж / Квартира / вул. Харківське шосе,56, Нова Дарниця, Киев

Код об'єкта: 3107953
Район: Нова Дарниця
Адреса: Харківське шосе вул., 56
Кількість кімнат:  3
Площа, кв.м.:  105//23
Поверх: 3/18

Продаж / Квартира / вул. Гетьмана Вадима, 1в,Караваєві дачі, Киев

Код об'єкта: 3107950
Район: Караваєві Дачі
Адреса: Гетьмана Вадима вул., 1в
Кількість кімнат:  2
Площа, кв.м.:  78.5//16.9
Поверх: 18/25

Продаж / Квартира / вул. Олександра Олеся, 27а,Виноградар, Київ

Код об'єкта: 3107941
Район: Виноградар
Адреса: Олександра Олеся вул., 27а
Кількість кімнат:  1
Площа, кв.м.:  44//25
Поверх: 2/20

Продаж / Квартира / бул. Чоколівський, 10,Чоколовка, Київ

Код об'єкта: 3108005
Район: Чоколівка
Адреса: Чоколівський бульв., 10
Кількість кімнат:  2
Площа, кв.м.:  65//21.5
Поверх: 6/10

Продаж / Квартира / вул. Борщагівська, 8,КПІ, Киев

Код об'єкта: 3107956
Район: КПІ
Адреса: Борщагівська вул., 8
Кількість кімнат:  3
Площа, кв.м.:  59//7.8
Поверх: 2/9

Продаж / Квартира / вул. Хорольська,8/4, Стара Дарниця, Киев

Код об'єкта: 3107955
Район: Стара Дарниця
Адреса: Хорольська вул., 8/4
Кількість кімнат:  3
Площа, кв.м.:  71//11
Поверх: 6/9

Продаж / Квартира / вул. Вузовська,4, Солом'янка, Киев

Код об'єкта: 3107818
Район: Солом'янка
Адреса: Вузівська вул., 4
Кількість кімнат:  2
Площа, кв.м.:  65//8.3
Поверх: 1/4

Продаж / Квартира / вул. Перемишльська, 2г,Вітряні Гори, Київ

Код об'єкта: 3107816
Район: Вітряні Гори
Адреса: Перемишильська, 2г
Кількість кімнат:  1
Площа, кв.м.:  59.6//11
Поверх: 27/27

Продаж / Квартира / пр-т Оболонський,16є, Оболонь, Київ

Код об'єкта: 3107815
Район: Оболонь
Адреса: Оболонський просп., 16є
Кількість кімнат:  3
Площа, кв.м.:  62.1//8.5
Поверх: 8/9

Продаж / Квартира / вул. Дубровицька,1б, Куренівка, Киев

Код об'єкта: 3107675
Район: Куренівка (Оболонський р-н)
Адреса: Дубровицька вул., 1б
Кількість кімнат:  4
Площа, кв.м.:  79.7//21.5
Поверх: 2/4

Продаж / Квартира / вул. Бережанська,4, Куренівка, Київ

Код об'єкта: 3107620
Район: Куренівка (Оболонський р-н)
Адреса: Бережанська вул., 4
Кількість кімнат:  4
Площа, кв.м.:  135//23
Поверх: 24/25

Продаж / Квартира / вул. Вишгородська, 45,Куренівка, Киев

Код об'єкта: 3107552
Район: Куренівка (Оболонський р-н)
Адреса: Вишгородська вул., 45
Кількість кімнат:  3
Площа, кв.м.:  92/92/18
Поверх: 19/24

Продаж / Квартира / вул. Вишгородська,12, Куренівка, Київ

Код об'єкта: 3107341
Район: Куренівка (Оболонський р-н)
Адреса: Вишгородська вул., 12
Кількість кімнат:  4
Площа, кв.м.:  134//
Поверх: 6/9

Продаж / Квартира / вул. Макіївська,4, Куренівка, Київ

Код об'єкта: 3107322
Район: Куренівка (Оболонський р-н)
Адреса: Макіївська вул., 4
Кількість кімнат:  1
Площа, кв.м.:  32/28/4
Поверх: 3/5

Продаж / Квартира / пер. Балтійський,3а, Куренівка, Киев

Код об'єкта: 3107199
Район: Куренівка (Оболонський р-н)
Адреса: Балтійський ул., 3а
Кількість кімнат:  3
Площа, кв.м.:  72//26
Поверх: 14/27

Хочете швидко і вигідно продати або купити нерухомість і не знаєте з чого почати?

Залиште заявку на нашому сайті, решту зробимо ми!

Залишаючи заявку я погоджуюсь на обробку моїх персональних даних