Головний офіс:
вул. Шота Руставелі, 20
офіс 6
Наші телефони:
+38 (067) 829 41 00
+38 (044) 390 34 93
4 432 800 грн / $ 120 000 *
* Згідно з вимогами Закону України «Про рекламу» ціни на всі об'єкти нерухомості на сайті виводяться в гривнях.
| Код об'єкта: | 92586 |
| Район: | Крюківщина |
| Адреса: | вул. Ярославська, 15 |
| Тип будинку: | |
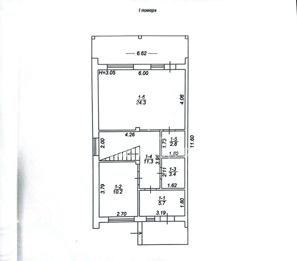
| Площа будинку, кв.м.: | 120 |
| Площа ділянки, соток: | 2.05 |
Простір для життя, природа поруч і вигідна інвестиція!
Продається сучасний дуплекс у котеджному містечку Крюківщини, всього за 7 км від ТРЦ «Мегамаркет».
Це місце, де міська інфраструктура поєднується з природною гармонією: за парканом — ліс, а поруч — школи, садочки, магазини, транспорт і навіть можливість облаштувати власний кабінет чи додаткову спальню на другому рівні.
Будинок має площу 120 м2, додатковий мансардний поверх і простору терасу з виходом на зелену зону. Ділянка — 2,05 сотки, з власним двором, заїздом і мангальною зоною.
Конструкція — надійна: монолітно-стрічковий фундамент, стіни з теплого керамоблоку, утеплення мінеральною ватою, дах — металочерепиця з паробар’єром.
Вікна — двокамерні склопакети «REHAU», фасад і вхідна група — з екологічного термодерева. Підведено електрику 15 кВт (на балансі Київенерго), є власна свердловина та септик.
Планування передбачає три окремі кімнати, два санвузли, гардеробну, велику кухню-вітальню з панорамними вікнами, а також можливість облаштування додаткової кімнати з вікном під санвузол. Простора тераса — ідеальне місце для вечірнього відпочинку або ранкової кави.
Котеджне містечко — нове, з приємним сусідським оточенням, охайними вулицями та атмосферою спокою. Тут легко дихати, зручно жити й вигідно вкладати кошти.
Завдяки близькості до комплексу «A-Клаб» та активному розвитку району, ціни на нерухомість стабільно зростають.
Це не просто житло, а можливість створити власний простір у передмісті Києва, де кожен день починається з тиші, свіжого повітря і впевненості в завтрашньому дні.
Можливий обмін на вашу нерухомість. Усі подробиці про будинок та про його придбання за телефоном.
Телефонуйте у будь-який час! Ми завжди раді вам допомогти!
Надаємо повний спектр послуг з купівлі та продажу квартир та будинків.
Великий досвід допомоги по купівлі квартир за державними програмами:
1) Є-оселя
2) Житло для ВПО та військових (постанова 280)
3) Сертифікат на зруйноване житло
З нами безпечно, якісно, вигідно!
Залиште заявку на нашому сайті, решту зробимо ми!
Залишаючи заявку я погоджуюсь на обробку моїх персональних даних