Шлях до нерухомості мрії!

4 802 200 грн / $ 130 000 *

* Згідно з вимогами Закону України «Про рекламу» ціни на всі об'єкти нерухомості на сайті виводяться в гривнях.

Код об'єкта: 112144
Район: Оболонь
Адреса: Тимошенко Маршала вул., 13а
Кількість кімнат: 3
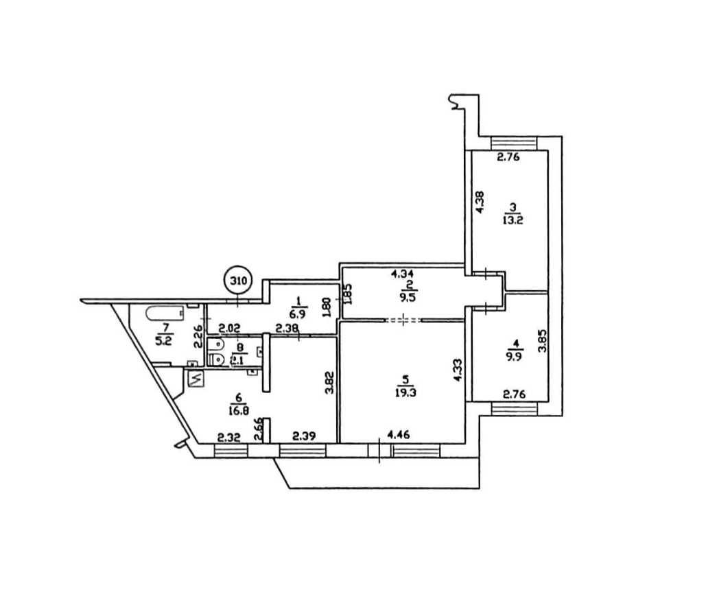
Площа, кв.м.: 85/16.8
Поверх/Поверхів: 13/21

Продаж / Квартира / вул. Левка Лук’яненка,13а, Оболонь, Киев

Простора 3-кімнатна квартира біля метро Мінська — потенціал для ідеального житла

Продається 3-кімнатна квартира за адресою вул. Левка Лук’яненка, 13А, Оболонський район, Київ. Будинок монолітно-каркасний, сучасного житлового фонду (орієнтовно 2005–2010 роки забудови), доглянутий під’їзд, ліфти, стабільні комунікації. Квартира розташована на 13 поверсі, загальна площа близько 85 м², зручне планування: простора вітальня, дві окремі спальні та велика кухня-столова 16,8 м².

Квартира світла та тиха, вікна виходять у двір, що забезпечує комфорт у будь-яку пору року. Є великий балкон, який додає простору та функціональності. Стан житловий, але потребує оновлення — і це реальна перевага для тих, хто хоче зробити ремонт під себе без переплати за чужі рішення. Планування дозволяє гнучко змінювати простір завдяки мінімальній кількості несучих стін. Частина меблів залишається, що дозволяє заїхати одразу.

Локація одна з найзручніших на Оболоні: до метро Мінська — лише 3–5 хвилин пішки, поруч школи, дитячі садочки, супермаркети, ТРЦ, кафе та набережна Дніпра. Відмінна транспортна розв’язка та розвинена інфраструктура роблять цю квартиру ідеальним варіантом для сім’ї або інвестиції.

Можливий обмін на вашу нерухомість — вигідна пропозиція, яка дозволяє наблизити мрію ще швидше! Усі подробиці Ви можете дізнатися прямо зараз. Телефонуйте у будь-який час або пишіть у месенджери!

Надаємо повний спектр послуг з купівлі та продажу квартир та будинків.
Великий досвід у супроводі придбання квартир за державними програмами.
1 ) Є-оселя
2 ) Житло для ВПО та військових (Постанова КМУ №280, №719)
3 ) Сертифікати на зруйноване житло (Постанова КМУ №600)
4 ) Програма «Держмолодь»

З нами безпечно, якісно, вигідно!

Обирайте комфорт та впевненість у кожному кроці угоди!

Цей об'єкт на мапі:

Ваш рієлтор

Золоті Ворота

Записатися на перегляд




Залишаючи заявку я погоджуюсь на обробку моїх персональних даних




Продаж / Квартира / вул. Максимовича Михайла, 26д,Голосієво, Киев

Код об'єкта: 3108515
Район: Голосієво
Адреса: Максимовича Михайла вл., 26д
Кількість кімнат:  1
Площа, кв.м.:  41/30/11
Поверх: 9/21

Продаж / Квартира / пр-т Комарова Космонавта, 15,Відрадний, Київ

Код об'єкта: 3108512
Район: Відрадний
Адреса: Комарова Космонавта просп., 15
Кількість кімнат:  2
Площа, кв.м.:  55/42/13
Поверх: 15/16

Продаж / Квартира / вул. Максимовича Михайла,24г, Голосієво, Київ

Код об'єкта: 3108513
Район: Голосієво
Адреса: Максимовича Михайла вл., 24Г
Кількість кімнат:  1
Площа, кв.м.:  41.1//
Поверх: 8/21

Продаж / Квартира / вул. Максимовича Михайла, 28д,Голосієво, Киев

Код об'єкта: 3108392
Район: Голосієво
Адреса: Максимовича Михайла вл., 28д
Кількість кімнат:  1
Площа, кв.м.:  41.2//19
Поверх: 6/21

Продаж / Квартира / вул. Олександра Олеся, 27а,Виноградар, Киев

Код об'єкта: 3108393
Район: Виноградар
Адреса: Олександра Олеся вул., 27а
Кількість кімнат:  1
Площа, кв.м.:  43.5//22
Поверх: 2/25

Продаж / Квартира / пр-т Оболонський,39а, Оболонь, Киев

Код об'єкта: 3108395
Район: Оболонь
Адреса: Оболонський просп., 39а
Кількість кімнат:  3
Площа, кв.м.:  62.55//7.42
Поверх: 2/9

Продаж / Квартира / вул. Михайла Бойчука,41-Б, Печерськ, Київ

Код об'єкта: 3108514
Район: Печерськ
Адреса: Михайла Бойчука вул., 41-Б
Кількість кімнат:  2
Площа, кв.м.:  82/37/22
Поверх: 12/26

Простора «сталінка» з великим потенціалом!

Код об'єкта: 3108403
Район: Вишгородський масив
Адреса: Вишгородська вул., 56/2
Кількість кімнат:  3
Площа, кв.м.:  91.3/57.7/11.6
Поверх: 5/4

Продаж / Квартира / вул. Софії Русової,1, Осокорки, Киев

Код об'єкта: 3108402
Район: Осокорки
Адреса: Софії Русової вул., 1
Кількість кімнат:  3
Площа, кв.м.:  82/42/12
Поверх: 15/25

Продаж / Квартира / вул. Іоанна Павла II,11, Печерск, Киев

Код об'єкта: 3108398
Район: Печерськ
Адреса: Лумумби Патріса вул., 11
Кількість кімнат:  2
Площа, кв.м.:  78.7//
Поверх: 9/24

Продаж / Квартира / пер. Лабораторний,22, Печерськ, Киев

Код об'єкта: 3108400
Район: Печерськ
Адреса: Лабораторний пер-до, 22
Кількість кімнат:  3
Площа, кв.м.:  77/51.4/8.7
Поверх: 5/5

Простора та затишна 2-кімнатна квартира у ЖК «Паркове Місто»!

Код об'єкта: 3108336
Район: Вітряні Гори
Адреса: Вишгородська вул., 45Б/1
Кількість кімнат:  2
Площа, кв.м.:  92/44.4/12.1
Поверх: 19/25

Простора та комфортна квартира для великої родини!

Код об'єкта: 3108528
Район: Оболонь
Адреса: Малиновського Маршала вул., 4в
Кількість кімнат:  4
Площа, кв.м.:  125/95/15
Поверх: 12/24

Продаж / Квартира / вул. Героїв полку «Азов»,28б,Оболонь, Киев

Код об'єкта: 3108401
Район: Оболонь
Адреса: Малиновського Маршала вул., 28-Б
Кількість кімнат:  1
Площа, кв.м.:  29.4/15/7
Поверх: 9/9

Продаж / Квартира / пр-т Оболонський,39а, Оболонь, Киев

Код об'єкта: 3108395
Район: Оболонь
Адреса: Оболонський просп., 39а
Кількість кімнат:  3
Площа, кв.м.:  62.55//7.42
Поверх: 2/9

Продаж / Квартира / пр-т Володимира Івасюка,4, Оболонь, Киев

Код об'єкта: 3108302
Район: Оболонь
Адреса: Івасюка Володимира (Героїв Сталінграда) просп., 4
Кількість кімнат:  4
Площа, кв.м.:  155/86/25
Поверх: 12/15

Продаж / Квартира / вул. Йорданська,16, Оболонь, Киев

Код об'єкта: 3108259
Район: Оболонь
Адреса: Йорданська вул., 16
Кількість кімнат:  2
Площа, кв.м.:  45.4/27.3/6
Поверх: 8/9

Продаж / Квартира / вул. Героїв полку «Азов», 4в, Оболонь, Київ

Код об'єкта: 3108223
Район: Оболонь
Адреса: Малиновського Маршала вул., 4в
Кількість кімнат:  4
Площа, кв.м.:  125/95/15
Поверх: 12/24

Хочете швидко і вигідно продати або купити нерухомість і не знаєте з чого почати?

Залиште заявку на нашому сайті, решту зробимо ми!

Залишаючи заявку я погоджуюсь на обробку моїх персональних даних